練馬区田柄4丁目 中古一戸建て
【地下鉄赤塚駅まで徒歩7分/角地/対面キッチン/駐車2台可/吹抜け】
物件詳細
| 価格 | 1億1,500万円
ローンシミュレーションこの物件を購入した場合の、月々の返済額の一例です。
(※元利均等方式 金利5.00%まで ※返済年数5~40年まで入力できます) (※ボーナスは年2回で計算しています。1000万円まで入力できます) |
||
|---|---|---|---|
| 所在地 | 練馬区田柄4丁目 | ||
| 交通 | |||
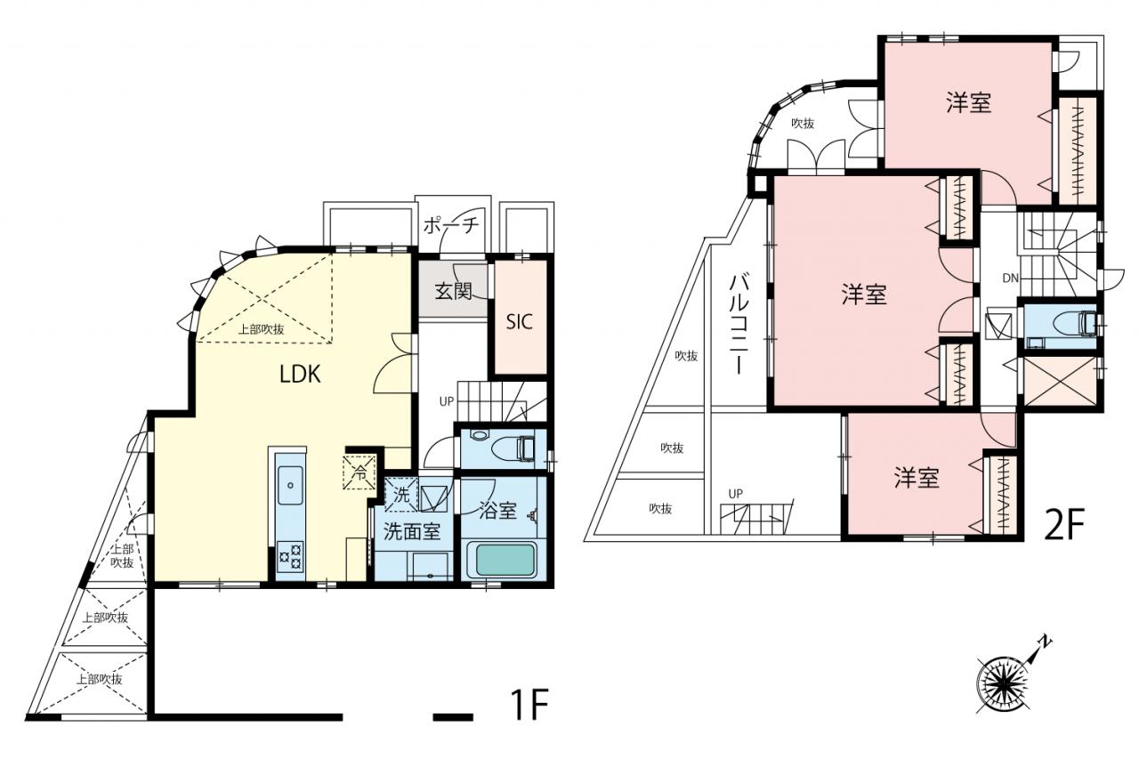
| 土地面積 | 110.00m2(33.27坪) | 建物面積 | 108.00m2(32.67坪) |
| 間取り | 3LDK | 築年月 | 2012年8月 |
| 総棟数 | 1戸 | 販売棟数 | 1戸 |
| 設備 | 都市ガス / 公営水道 / 汚水:公共下水 / 雑排水:公共下水 前道6m以上 / 角地 / 平坦地 / 2沿線以上利用可 / 始発駅 / 2階建 / 2面採光 / 3面採光 / 全室2面採光 / LDK18畳以上 / ロフト / 吹抜け / 間取り変更可能 / 全居室収納 / 床下収納 / クローゼット / シューズインクローク / システムキッチン / 対面式キッチン / 浴室乾燥機 / 浴室に窓 / シャワー付洗面化粧台 / トイレ2ヶ所 / 室内洗濯機置場 / 洗濯機置場有 / バルコニー / ルーフバルコニー / 駐車2台可 / TVモニタ付インターホン / スーパー 徒歩10分以内 / 小学校 徒歩10分以内 / 隣家との間隔が大きい / 保育施設・幼稚園400m以内 / 公園 400m以内 / コンビニ 400m以内 / 隣家との間隔が広い / 都市ガス |
||
|---|---|---|---|
| 建物構造 | 木造 地上2階建て | 接道 | 北西側 6m 角地 公道 接面:8.4m、南西側 6m 角地 公道 接面:10.6m |
| 私道負担 | セットバック | ||
| 建ぺい率 | 50% | 容積率 | 100% |
| 駐車場 | カースペース有 2台 | 敷地権利 | 所有権 |
| 地目 | 宅地 | 都市計画 | 市街化 |
| 用途地域 | 第1種低層住居専用地域 |
取引態様 | 媒介 |
| 引渡時期 | 相談 | 現況 | 空家 完成済 |
| 建築許可理由 | 建築確認番号 | ||
| リフォーム | 内装リフォーム:2025/04済(壁 床)
外装リフォーム:2025/04済(外壁) |
||
| 法令上の制限 | 高度地区 準防火地域 | ||
| 備考 | 車庫面積:9.93m2 車庫は車種により制限がございます 間取り変更の際は、別途費用がかかります。 |
||
| 更新日 | 2025年11月7日 | 更新予定日 | 2025年11月19日 |
※物件番号:712954940
ポイント
- ◆◇◆◇物件のおすすめポイントはこちら◇◆◇◆
■地下鉄赤塚駅まで徒歩9分で毎日の通勤通学や休日のお出かけにも便利
■隣地に挟まれておらず開放感のある北西×南西角地
■料理中でもリビングにいるお子様の様子を見守れる対面キッチン
■お部屋がすっきり片付く各室に収納あり
■駐車場2台分。ご家族のお車が1台でも、来客時に活躍します
スタッフからのおすすめポイント
-
杉野 寛季
創建ホームズ施工、こだわりの中古一戸建て物件です。角地につき開放感があり陽当たりも良好!広々リビングに吹き抜けやルーフバルコニーなど開放感を感じさせる設計です。3LDKの間取りはお子様の成長やライフスタイルに合わせて4LDKへの変更も可能なレイアウトです。見学したい・資料がほしいなどご希望がございましたら、まずはお気軽にお問い合わせください♪

特徴・設備
前道6m以上 角地 平坦地
2沿線以上利用可 始発駅
2階建
3面採光 全室2面採光
LDK18畳以上 ロフト 吹抜け 間取り変更可能
室内洗濯機置場
全居室収納 床下収納 シューズインクローク クローゼット
システムキッチン 対面式キッチン
浴室乾燥機 浴室に窓
シャワー付洗面化粧台 トイレ2ヶ所 室内洗濯機置場 洗濯機置場有
ルーフバルコニー バルコニー
駐車2台可
TVモニタ付インターホン
スーパー 徒歩10分以内 小学校 徒歩10分以内 隣家との間隔が大きい
都市ガス
物件周辺環境
物件情報について
- ※地積、建物床面積、仕様に変更が生じる場合があります。
- ※図面と現況が異なる場合には現況を優先します。
- ※設備やポイントは、販売戸数が複数の物件は、全ての住戸に該当しない項目もあります。
- ※間取りのSは「納戸」「サービスルーム」など建築基準法第28条に適合していない為、居室と認められない空間を表しています。
- ※カースペース、車庫などの駐車スペースについては車種による制限がございます。
- ※車庫面積の記載がある場合は、建物面積に含まれております。
- ※学校への距離は、最短ルートでの表示であり、通学路での距離を表したものではありません。
- ※周辺環境に表示している距離はシステムにより自動算出をしております。システムの不具合等により表示に誤りが生じる場合がございます。
- ※掲載写真、または完成予想図や間取図などの画像に描かれている家具や車などは、特にコメントがない場合、販売価格に含まれません。
- ※完成予想図はいずれも外構、植栽、外観等実際のものとは多少異なることがあります。
- ※市街化調整区域では、基本宅地の造成及び建物の建築はできません。都市計画法第34条第11号区域では条件を満たす場合に住宅等の建築が可能となります。
- ※価格は物件の代金総額を表示しており、建物(プラン例含む)等消費税が課税される場合は税込み価格です。
- ※本ホームページ上の不動産物件情報につきましては、弊社の責任において、管理運用を行っておりますが、更新処理のタイムラグ等により、ご覧戴いた時並びにお問い合わせの時点で、既に成約している場合もございますので、ご容赦下さい。
取扱店舗
-
大泉支店
物件お問い合わせ
- STEP01入力
- STEP02確認
- STEP03完了
この物件を見たひとがチェックしている物件
新着物件
エリアを変更して戸建を検索する
練馬区内および近郊の駅から戸建を探す
- 上石神井
- 吉祥寺
- 武蔵関
- 東伏見
- 大泉学園
- 光が丘
- 練馬春日町
- 練馬高野台
- 石神井公園
- 地下鉄赤塚
- 地下鉄成増
- 成増
- 下赤塚
- 豊島園
- 練馬
- 上井草
- 保谷
- 平和台
- 野方
- 都立家政
- 江古田
- 小竹向原
- 新桜台
- 新江古田
- 東武練馬
- 上板橋
- 井荻
- 氷川台
- 桜台
- 中村橋
- 和光市
- 富士見台
- 鷺ノ宮
- 下井草
- ときわ台
- 沼袋
- 蓮根
- 西武柳沢
- 荻窪
- 西荻窪
- 三鷹
- 朝霞
練馬区の物件を種別から探す
練馬区の物件を人気の価格帯から探す
こだわり条件から探す(一戸建て)
東京都練馬区の魅力
人口約70万人、23区では一番の緑被率を誇り、都市と自然の融合が特徴の練馬区は、23区内では5番目に広い面積を誇ります。街は東映アニメーションミュージアムや、美しい景観の石神井公園、牧野記念庭園など様々な施設が街を彩ります。
北部の一部では東武東上線が通り、隣接する板橋区の下赤塚駅、東武練馬駅、上板橋駅が利用可能。また、東京メトロ有楽町線では地下鉄赤塚駅、平和台駅、氷川台駅、小竹向原駅も利用でき、東武東上線、および西武池袋線へ乗り入れを実現している東京メトロ副都心線を通じ、東急東横線も乗り入れるため都心へのアクセスが良く、どの駅も通勤・通学に便利な駅といえます。また都営大江戸線では光が丘駅、練馬駅、新江古田駅、西武池袋線では大泉学園駅、石神井公園駅、練馬高野台駅、富士見台駅、中村橋駅、練馬駅、桜台駅、江古田駅、西武豊島線から豊島園駅を利用できます。市の南部では、西武新宿線の武蔵関駅、上石神井駅が利用可能。バス便も豊富で、JR中央線にアクセスできる便もあり、日常の移動をバスで実現されている方が多く、どのエリアにお住まいになられても高い利便性を享受することができます。道路交通も関越自動車道大泉インターをはじめ、笹目通り、目白通り、冨士街道、環状八号線など、主要幹線道路が多く、様々な場所にアクセスしやすい場所です。住協グループは、利便性の高い練馬区に多くの不動産物件(新築・中古戸建・中古マンション・土地)を仕入れております。






















