【住協だけのお預かり物件】狭山市大字下奥富 中古一戸建て
◆月々4万円台~で戸建に住める!【4DK+S/オール電化/敷地106坪超】
【 居室 / 8帖 】
フローリング張りの和空間。続き間と合わせて14帖の開放的な空間が広がります ※家具や小物はCGによるイメージです
【 居室 / 6帖 】
陽当たりの良い縁側が備わるフローリングの和空間
【 ダイニングキッチン 】
8帖ほどの広いダイニングスペース
【 ダイニングキッチン 】
オール電化仕様のシステムキッチンを搭載
【 IHクッキングヒーター 】
【 ビルドイン食洗機 】
【 居室 / 10帖 】
大型クローゼットやストレージルームを備えた主寝室
【 居室 / 10帖 】
二面採光で開放感のある広いお部屋です
【 ストレージルーム 】
収納や書斎など、多用途に活用できる納戸空間です
【 居室 】
二方向から出入りできる広々としたお部屋です
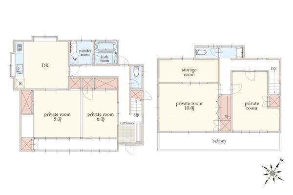
【 間取り図 】
物件詳細
| 価格 | 1,980万円
ローンシミュレーションこの物件を購入した場合の、月々の返済額の一例です。
(※元利均等方式 金利5.00%まで ※返済年数5~40年まで入力できます) (※ボーナスは年2回で計算しています。1000万円まで入力できます) |
||
|---|---|---|---|
| 所在地 | 狭山市大字下奥富 | ||
| 交通 | |||
| 土地面積 | 351.91m2(106.45坪) | 建物面積 | 125.03m2(37.82坪) |
| 間取り | 4SDK | 築年月 | 1997年4月 |
| 総棟数 | 1戸 | 販売棟数 | -戸 |
| 設備 | 公営水道 / 汚水:集中浄化槽 / IHコンロ 土地100坪以上 / 市街地が近い / 避暑地 / 閑静な住宅地 / 整形地 / 緑豊かな住宅地 / 2階建 / 東南向き / 2面採光 / 陽当り良好 / 通風良好 / 出窓 / 全居室6畳以上 / 縁側 / フローリング / 全居室フローリング / 人感センサー付照明 / 全居室収納 / クローゼット / シューズボックス / 納戸 / システムキッチン / 独立型キッチン / IHクッキングヒーター / 食器洗乾燥機 / オートバス / 浴室に窓 / 追焚機能 / シャワー付洗面化粧台 / トイレ2ヶ所 / 温水洗浄便座 / 室内洗濯機置場 / 洗濯機置場有 / 洗面所独立 / バルコニー / ワイドバルコニー / 庭10坪以上 / 省エネ給湯器 / オール電化 / 駐車3台以上可 / セキュリティ充実 / TVモニタ付インターホン / ダブルロックドア / 周辺交通量少なめ / 保育施設・幼稚園400m以内 |
||
|---|---|---|---|
| 建物構造 | 木造 地上2階建て | 接道 | 南西側 3m 一方 公道、北東側 4m 一方 私道 |
| 私道負担 | 私道負担有 89.66m2 持分:113/633 | セットバック | - |
| 建ぺい率 | 60% | 容積率 | 200%・160% |
| 駐車場 | - | 敷地権利 | 所有権 |
| 地目 | 宅地 (現況:雑種地) | 都市計画 | 市街化調整 |
| 用途地域 | 無指定 |
取引態様 | 専任媒介 |
| 引渡時期 | 相談 | 現況 | 空家 完成済 |
| 建築許可理由 | 建築確認番号 | - | |
| リフォーム | - | ||
| 法令上の制限 | |||
| 備考 | - ※景観法 ※北東側約4m私道を接道とする場合、都市計画法第34条11号に該当し再建築可 ※南西側約3m公道を接道とする場合、都市計画法第34条12号に該当し、原則再建築不可 ※都市計画法第34条第12号(下記の要件を満たす場合、建築が可能となる場合があります) (1)市街化調整区域内(隣接市町村の市街化調整区域を含む)に20年以上居住している6親等以内の親族がいる。 (2)購入されるご本人が自分名義の家を所有していない。 (3)自ら居住するための家を建てるために本物件を購入する。 ≪お支払い例について≫ ■提携金融機関/埼玉りそな銀行 ■利率/0.740%(変動金利・優遇金利) ■借入金額/1980万円 ■返済期間/40年 ※記載の返済例は令和7年11月現在の金利・融資条件で作成しており融資実行時の金利と異なる場合がございます。購入には別途諸費用が掛かります。上記支払例は諸費用分を含んでおりません。詳細は上記担当までお尋ねください。 |
||
| 更新日 | 2025年12月13日 | 更新予定日 | 2025年12月21日 |
※物件番号:713471359
ポイント
- ◇敷地面積106坪超!オール電化仕様の4DK+S住宅
◇住協狭山支店のお預かり物件です!
~ 当 物 件 の お す す め ポ イ ン ト ~
■オール電化仕様の省エネ住宅
■縁側を備えた開放的なフローリング張り和空間(8帖+6帖)
■食洗機やIHクッキングヒーターを搭載したシステムキッチン
■快適な暮らしを実現する広々とした居室空間
■70坪を超える広大な庭付き(カースペースなどに活用可能!)
など
■□■ お問い合わせをご希望のお客様へ ■□■
住協では、「この物件の詳細が知りたい」「似たような物件を探している」「分からないことだらけで、とにかく相談したい」…など、住宅に関するご相談・お問合せをお待ちしております。
どんな些細な内容でも大丈夫です。経験豊富な弊社スタッフにお任せください!
☆資料請求のお問合せ方法(3分で完了します!)
(1)ページ下部の青色『資料請求』ボタンをクリック
(2)必要事項の入力(ご希望、ご要望欄は空欄でも大丈夫です)
(3)確認画面から【送信】を押すだけ
「住協 狭山支店」のスタッフ一同、皆様からのお問合せ心よりお待ちしております!
☆お問い合わせは、画面上【資料請求】ボタン、もしくは【0120-59-3611(通話料無料)】まで!
スタッフからのおすすめポイント
-
狭山支店
西武新宿線「新狭山」駅から徒歩20分の住宅街に、オール電化仕様4DK+S住宅が登場!
全居室フローリング張りで、広々とした室内が魅力的な物件です。また、70坪を超える庭スペースもあり、ガーデニングなどのアウトドア趣味や、駐車場としも活用可能!
現在空家につき、いつでもご案内が可能です。
まずはお気軽にお問い合わせください!
特徴・設備
土地100坪以上 市街地が近い 避暑地 閑静な住宅地 整形地 緑豊かな住宅地
2階建
陽当り良好 東南向き 通風良好 出窓
全居室6畳以上 縁側
全居室フローリング 人感センサー付照明 フローリング 室内洗濯機置場
全居室収納 納戸 クローゼット シューズボックス
システムキッチン IHクッキングヒーター 食器洗乾燥機 独立型キッチン
オートバス 浴室に窓 追焚機能
シャワー付洗面化粧台 トイレ2ヶ所 温水洗浄便座 室内洗濯機置場 洗濯機置場有 洗面所独立
ワイドバルコニー バルコニー
庭10坪以上
省エネ給湯器 オール電化
駐車3台以上可
セキュリティ充実 TVモニタ付インターホン ダブルロックドア
周辺交通量少なめ
物件周辺環境
物件情報について
- ※地積、建物床面積、仕様に変更が生じる場合があります。
- ※図面と現況が異なる場合には現況を優先します。
- ※設備やポイントは、販売戸数が複数の物件は、全ての住戸に該当しない項目もあります。
- ※間取りのSは「納戸」「サービスルーム」など建築基準法第28条に適合していない為、居室と認められない空間を表しています。
- ※カースペース、車庫などの駐車スペースについては車種による制限がございます。
- ※車庫面積の記載がある場合は、建物面積に含まれております。
- ※学校への距離は、最短ルートでの表示であり、通学路での距離を表したものではありません。
- ※周辺環境に表示している距離はシステムにより自動算出をしております。システムの不具合等により表示に誤りが生じる場合がございます。
- ※掲載写真、または完成予想図や間取図などの画像に描かれている家具や車などは、特にコメントがない場合、販売価格に含まれません。
- ※完成予想図はいずれも外構、植栽、外観等実際のものとは多少異なることがあります。
- ※市街化調整区域では、基本宅地の造成及び建物の建築はできません。都市計画法第34条第11号区域では条件を満たす場合に住宅等の建築が可能となります。
- ※価格は物件の代金総額を表示しており、建物(プラン例含む)等消費税が課税される場合は税込み価格です。
- ※本ホームページ上の不動産物件情報につきましては、弊社の責任において、管理運用を行っておりますが、更新処理のタイムラグ等により、ご覧戴いた時並びにお問い合わせの時点で、既に成約している場合もございますので、ご容赦下さい。
取扱店舗
-
狭山支店
物件お問い合わせ
- STEP01入力
- STEP02確認
- STEP03完了
この物件を見たひとがチェックしている物件
新着物件
エリアを変更して戸建を検索する
狭山市内および近郊の駅から戸建を探す
狭山市の物件を種別から探す
狭山市の物件を人気の価格帯から探す
こだわり条件から探す(一戸建て)
埼玉県狭山市の魅力
全国的にも有名な「狭山茶」の産地のひとつでもある狭山市。稲荷山公園や、智光山公園などの大きな公園や、市内を流れる入間川など、豊かな自然と住宅地が共存しています。11月3日文化の日に毎年開催される入間航空祭は、狭山市ならびに隣接する入間市に拠点のある航空自衛隊入間基地で開かれ、2017年には21万人を動員するほど毎年多くの方が訪れる人気のお祭りです。
鉄道では西武新宿線において、新狭山駅、狭山市駅、入曽駅の3駅があり、どの駅にも住みやすい住宅地があります。特に狭山市駅は、特急小江戸号も停車することから利便性も高く、通勤にも便利。駅前再開発によって完成した狭山市駅西口地区スカイテラスは、平成26年度都市景観大賞都市空間部門で優秀賞を受賞しました。その美しい景観は、新たな街のシンボルとなり親しまれています。また、同市では西武池袋線稲荷山公園駅も利用可能。東京メトロ副都心線を通じ、東急東横線と東京メトロ有楽町線も乗り入れるため、都心へのアクセスが良く通勤・通学に便利な駅です。また、道路交通では、圏央道狭山日高インターがあり、中央自動車道や関越自動車道、東名自動車道にもアクセスできる利便性が魅力。住協グループは新築・中古戸建・中古マンション・土地の販売を行い、新たな街づくりに励みます。










































