ELEVANCE狭山 No.15
永住の地に相応しい富士見1丁目―。
家の顔となる南側には多くの窓があり、爽やかな印象の中に落ち着きを感じる造りに。
基調の白が美しさを際立てます―。
統一感のある美しい街並みが広がる「ELEVANCE狭山」。
狭山市駅までは徒歩6分~の好立地。/IoT設備はスマートフォンで操作が可能。
永住の地に相応しい富士見1丁目。/敷地は全棟ゆとりあるカースペース2台分を確保。
アイアン調装飾などを採用した外観デザイン。/宅配ボックスが設置された門柱に欧風デザインの外灯。
プライベートテラスを採用し、美しい街並みを演出。/隣地との境界にデザインウォールを選定。
IoT設備が日々の暮らしをスマートに。
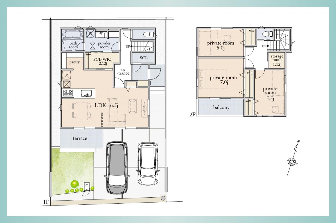
【 間取り図 / 15号棟 】
3SLDK+SCL+FCL(WIC)+テラス|建物面積96.47m2|南接道
全区画38坪を超えるゆとりある整形地。
モデルルームの見学予約を承ります。お気軽にお問い合わせください。
充実した住環境が、日々の暮らしを彩ります。ぜひ当分譲地や周辺をご見学ください。
西武新宿線「狭山市」駅が最寄り。距離は最短6分。駅ナカには様々な商業施設が揃います。
※掲載の電車所要時間は、乗換時間などを含んだ通勤時のもので時間帯により異なります。※通勤時は7:30~9:30、日中平常時は9:31~16:30に到着する電車を表記しています(Yahoo!路線情報乗換案内2025年9月調べ)
教育施設や子育て環境が良好、共働き世帯にもおすすめな狭山市。
お子様が飽きずに過ごせるよう、アニメDVDや絵本、おもちゃなどが揃ったキッズスペースを完備。スタッフがお子様のお相手や見守りをさせていただきますのでご安心ください。
物件詳細
| 価格 | 5,580万円
ローンシミュレーションこの物件を購入した場合の、月々の返済額の一例です。
(※元利均等方式 金利5.00%まで ※返済年数5~40年まで入力できます) (※ボーナスは年2回で計算しています。1000万円まで入力できます) |
||
|---|---|---|---|
| 所在地 | 狭山市富士見1丁目 | ||
| 交通 | |||
| 土地面積 | 128.03m2(38.72坪) | 建物面積 | 96.47m2(29.18坪) |
| 間取り | 3SLDK | 築年月 | 2025年9月 |
| 総棟数 | 7戸 | 販売棟数 | 1戸 |
| 設備 | 都市ガス / 公営水道 / 汚水:公共下水 耐震構造 / 地盤調査済 / 市街地が近い / 南側道路面す / 閑静な住宅地 / 整形地 / 緑豊かな住宅地 / 都市近郊 / 前面棟無 / 高台に立地 / 平坦地 / 開発分譲地内 / 2階建 / 南向き / 2面採光 / 3面採光 / 全室2面採光 / 陽当り良好 / 通風良好 / LDK15畳以上 / 和室 / 4LDK以上の広い間取り / 10㎡以上の庭 / フローリング / 全居室フローリング / 天井高2.5m以上 / リビング階段 / MM(マルチメディア)コンセント / 人感センサー付照明 / ダウンライト / 24時間換気システム / エアコン / 冷房 / スマートキー / 室内物干し / 全居室収納 / 床下収納 / ウォークインクローゼット / クローゼット / シューズインクローク / シューズボックス / 納戸 / システムキッチン / 対面式キッチン / オープンキッチン / カウンターキッチン / パントリー(食器・食品の収納庫) / 食器洗乾燥機 / 浄水器 / 浴室乾燥機 / オートバス / 浴室に窓 / 追焚機能 / 浴室暖房 / シャワールーム / 浴室1坪以上 / シャワー付洗面化粧台 / トイレ2ヶ所 / 温水洗浄便座 / 節水型トイレ / 室内洗濯機置場 / 洗濯機置場有 / 洗面所独立 / バルコニー / ワイドバルコニー / 南面バルコニー / テラス / 南庭 / 省エネ給湯器 / 全居室複層ガラスか複層サッシ / 高速ネット対応 / 光ファイバー / インターネット対応 / 駐車2台可 / EV車充電設備 / 宅配ボックス / セキュリティ充実 / TVモニタ付インターホン / ディンプルキー / ダブルロックドア / シャッター雨戸 / 電動シャッター / スーパー 徒歩10分以内 / 総合病院 徒歩10分以内 / 周辺交通量少なめ / 即入居可 / 都市ガス / 照明器具付 / 仲介手数料不要 |
||
|---|---|---|---|
| 建物構造 | 木造 地上2階建て | 接道 | 南側 4.5m 一方 公道 |
| 私道負担 | - | セットバック | - |
| 建ぺい率 | 60% | 容積率 | 200% |
| 駐車場 | カースペース有 2台 | 敷地権利 | 所有権 |
| 地目 | 宅地 | 都市計画 | 市街化 |
| 用途地域 | 第1種住居地域 |
取引態様 | 売主 |
| 引渡時期 | 即時 | 現況 | 完成済 |
| 建築許可理由 | 建築確認番号 | 第SJK-KX245426380号 | |
| リフォーム | - | ||
| 法令上の制限 | 景観法 航空法 | ||
| 備考 | - ※清掃施設持分:4.12m2×1/18 ※航空法、埼玉県景観条例(都市区域) |
||
| 更新日 | 2025年11月16日 | 更新予定日 | 2025年12月24日 |
※物件番号:713654466
ポイント
- 〈ELEVANCE狭山の魅力〉
◇西武新宿線「狭山市」駅まで6分の好立地
通勤通学にゆとりが生まれ、オフの選択肢も広がります
◇IoT搭載のスマートハウス
スマホと連動で遠隔操作が可能、日々の暮らしをスマートに
◇カースペース2台の敷地
整形地のため間口が広く、出し入れが簡単に
◇統一された街並み
白を基調、欧風デザインで統一しており、一体感のある街並みが広がります
間取りやその他の設備など、お気軽に住協狭山支店スタッフまでお申し付けください。
お電話、メール、ご郵送などお客様に寄り添った形で、ご提案させていただきます。
----------------------------------
〈見学予約受付中〉
当日のご見学や現地までの送迎も承ります。
チャイルドシート等もご用意いたしますので、お気軽にお問い合わせください。
----------------------------------
〈無料会員登録をするメリット〉
(1)会員様限定で公開している物件が閲覧可能
(2)お気に入りリストで物件を比較検討
(3)弊社自社物件の情報を優先的にお届け
(4)登録店舗へのご来店でQUOカードプレゼント
※諸条件がございます。詳細は会員登録ページをご覧ください
スタッフからのおすすめポイント
-
狭山支店
ELEVANCE狭山をご覧いただきありがとうございます。
当分譲地は狭山市駅から最短徒歩6分、カースペースは2台分、さらにIoT設備を搭載したスマートハウスになります。間取りは全棟一級建築士が携わっており、細部にまで拘りぬいた邸宅に仕上がりました。
特徴・設備
地盤調査済 市街地が近い 南側道路面す 閑静な住宅地 整形地 緑豊かな住宅地 都市近郊 前面棟無 高台に立地 平坦地 開発分譲地内
2階建
陽当り良好 南向き 3面採光 通風良好 全室2面採光
LDK15畳以上 和室
全居室フローリング 天井高2.5m以上 リビング階段 スマートキー エアコン MM(マルチメディア)コンセント 人感センサー付照明 ダウンライト 室内物干し フローリング 冷房 室内洗濯機置場
全居室収納 床下収納 ウォークインクローゼット シューズインクローク 納戸 クローゼット シューズボックス
システムキッチン 対面式キッチン パントリー(食器・食品の収納庫) 食器洗乾燥機 浄水器 カウンターキッチン オープンキッチン
浴室乾燥機 浴室1坪以上 オートバス 浴室に窓 追焚機能 浴室暖房 シャワールーム
シャワー付洗面化粧台 トイレ2ヶ所 温水洗浄便座 節水型トイレ 室内洗濯機置場 洗濯機置場有 洗面所独立
ワイドバルコニー 南面バルコニー テラス バルコニー
南庭
省エネ給湯器 全居室複層ガラスか複層サッシ
高速ネット対応 光ファイバー インターネット対応
駐車2台可 EV車充電設備
セキュリティ充実 TVモニタ付インターホン ディンプルキー シャッター雨戸 ダブルロックドア 電動シャッター
スーパー 徒歩10分以内 総合病院 徒歩10分以内 周辺交通量少なめ
即入居可
都市ガス 照明器具付
物件周辺環境
物件情報について
- ※地積、建物床面積、仕様に変更が生じる場合があります。
- ※図面と現況が異なる場合には現況を優先します。
- ※設備やポイントは、販売戸数が複数の物件は、全ての住戸に該当しない項目もあります。
- ※間取りのSは「納戸」「サービスルーム」など建築基準法第28条に適合していない為、居室と認められない空間を表しています。
- ※カースペース、車庫などの駐車スペースについては車種による制限がございます。
- ※車庫面積の記載がある場合は、建物面積に含まれております。
- ※学校への距離は、最短ルートでの表示であり、通学路での距離を表したものではありません。
- ※周辺環境に表示している距離はシステムにより自動算出をしております。システムの不具合等により表示に誤りが生じる場合がございます。
- ※掲載写真、または完成予想図や間取図などの画像に描かれている家具や車などは、特にコメントがない場合、販売価格に含まれません。
- ※完成予想図はいずれも外構、植栽、外観等実際のものとは多少異なることがあります。
- ※市街化調整区域では、基本宅地の造成及び建物の建築はできません。都市計画法第34条第11号区域では条件を満たす場合に住宅等の建築が可能となります。
- ※価格は物件の代金総額を表示しており、建物(プラン例含む)等消費税が課税される場合は税込み価格です。
- ※本ホームページ上の不動産物件情報につきましては、弊社の責任において、管理運用を行っておりますが、更新処理のタイムラグ等により、ご覧戴いた時並びにお問い合わせの時点で、既に成約している場合もございますので、ご容赦下さい。
取扱店舗
-
狭山支店
物件お問い合わせ
- STEP01入力
- STEP02確認
- STEP03完了
この物件を見たひとがチェックしている物件
新着物件
エリアを変更して戸建を検索する
狭山市内および近郊の駅から戸建を探す
狭山市の物件を種別から探す
狭山市の物件を人気の価格帯から探す
こだわり条件から探す(一戸建て)
埼玉県狭山市の魅力
全国的にも有名な「狭山茶」の産地のひとつでもある狭山市。稲荷山公園や、智光山公園などの大きな公園や、市内を流れる入間川など、豊かな自然と住宅地が共存しています。11月3日文化の日に毎年開催される入間航空祭は、狭山市ならびに隣接する入間市に拠点のある航空自衛隊入間基地で開かれ、2017年には21万人を動員するほど毎年多くの方が訪れる人気のお祭りです。
鉄道では西武新宿線において、新狭山駅、狭山市駅、入曽駅の3駅があり、どの駅にも住みやすい住宅地があります。特に狭山市駅は、特急小江戸号も停車することから利便性も高く、通勤にも便利。駅前再開発によって完成した狭山市駅西口地区スカイテラスは、平成26年度都市景観大賞都市空間部門で優秀賞を受賞しました。その美しい景観は、新たな街のシンボルとなり親しまれています。また、同市では西武池袋線稲荷山公園駅も利用可能。東京メトロ副都心線を通じ、東急東横線と東京メトロ有楽町線も乗り入れるため、都心へのアクセスが良く通勤・通学に便利な駅です。また、道路交通では、圏央道狭山日高インターがあり、中央自動車道や関越自動車道、東名自動車道にもアクセスできる利便性が魅力。住協グループは新築・中古戸建・中古マンション・土地の販売を行い、新たな街づくりに励みます。











































