【売主物件】坂戸市塚越 中古一戸建て
【売主物件につき仲介手数料不要/4LDK/駐車4台可/オール電化/アイランドキッチン/書斎】
現地外観/全室南向きに面し、暖かな陽ざしが差し込む4LDK中古住宅
現地外観/前面道路が6mあり、車の出し入れもラクラクな住環境です。
現地外観/最大4台駐車可能な広々カースペースです。
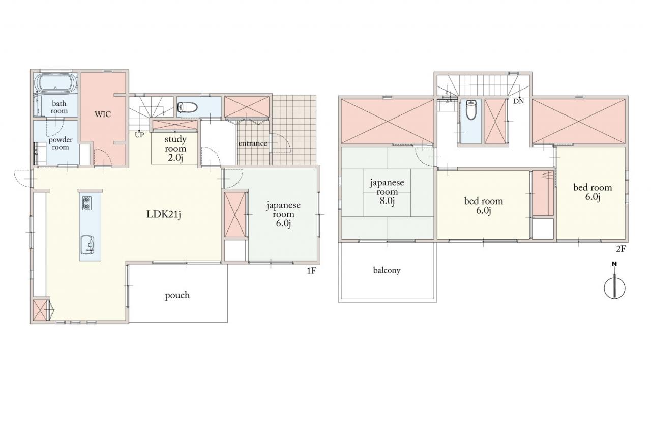
間取り図
現況空家になります。現地見学、詳細などお気軽にお問合せください。
■LDK/南向きに開口部が広く、暖かな陽ざしが差し込むリビングダイニング
■LDK/南向きに開口部が広く、暖かな陽ざしが差し込むLDKは約21帖
■LDK/南向きに開口部が広く、暖かな陽ざしが差し込むLDKは約21帖
■システムキッチン/キッチンは使いやすさに定評のあるアイランド型キッチンになります。
■システムキッチン/キッチン背面部分には便利な収納空間もございます。
■IHクッキングヒーター/火を使わず安心・安全。ワンタッチで操作が可能です。汚れが落ちやすくお手入れも容易なトッププレートです。
■食洗機/お料理の後片つけをきちんとサポートするビルトインタイプの食器洗い乾燥機です。
■WIC/大容量のウォークインクローゼットも備えております。
■WIC/大容量のウォークインクローゼットも備えております。
■洗面化粧台/三面鏡の裏に収納空間を設け、家族一人一人の毎日の使い勝手にも配慮されたサニタリースペース
■システムバス/落ち着いた色合いのシステムです。寛ぎのバスタイムで日々の疲れからカラダを解放しましょう
■給湯設備/給湯器リモコンです。追焚き機能、自動お湯張り機能ボタンがありますね。
■浴室換気暖房乾燥機/雨の日や外出時に洗濯物を干せて大変便利です。寒い時はあらかじめ室内を暖めて快適に入浴ができる暖房付き乾燥機です。
■モニター付きインターホン/訪問者が一目でわかるTVモニター付きインターホン、録画機能付きです。
■カウンタースペース/リビングダイニングの一角に、便利なカウンタースペースを設けました。
■バルコニー/南向きに面し、暖かな陽ざしが降り注ぐバルコニーです
■和室 約6帖
■洋室 約6帖/2面採光で、採光・通風良好なお部屋です。
■大型収納空間/普段使わないスーツケースや、衣替えの衣服、布団などの場所を取ってもらうモノの収納に便利な収納空間です。
■和室 約8帖/南向きに面し、暖かな陽ざしが差し込むリビングダイニング
■和室 約8帖/南向きに面し、暖かな陽ざしが差し込むリビングダイニング
■大型収納空間/普段使わないスーツケースや、衣替えの衣服、布団などの場所を取ってもらうモノの収納に便利な収納空間です。
■洋室 約6帖
■玄関/シューズインクローゼットを備えた玄関です。
■トイレ
物件詳細
| 価格 | 2,780万円
ローンシミュレーションこの物件を購入した場合の、月々の返済額の一例です。
(※元利均等方式 金利5.00%まで ※返済年数5~40年まで入力できます) (※ボーナスは年2回で計算しています。1000万円まで入力できます) |
||
|---|---|---|---|
| 所在地 | 坂戸市大字塚越 | ||
| 交通 | |||
| 土地面積 | 300.5m2(90.9坪) | 建物面積 | 125.86m2(38.07坪) |
| 間取り | 4LDK | 築年月 | 2009年11月 |
| 総棟数 | - | 販売棟数 | -戸 |
| 設備 | 公営水道 / 汚水:合併浄化槽 閑静な住宅地 / 前道6m以上 / 平坦地 / 2階建 / 陽当り良好 / 通風良好 / LDK20畳以上 / 和室 / 4LDK以上の広い間取り / 全居室収納 / ウォークインクローゼット / クローゼット / シューズボックス / システムキッチン / 対面式キッチン / アイランドキッチン / 浴室に窓 / トイレ2ヶ所 / 南面バルコニー / 南庭 / オール電化 / 駐車3台以上可 / 小学校 徒歩10分以内 / 周辺交通量少なめ / 保育施設・幼稚園400m以内 / コンビニ 400m以内 / 即入居可 |
||
|---|---|---|---|
| 建物構造 | 木造 地上2階建て | 接道 | 東側 6m 一方 公道 |
| 私道負担 | - | セットバック | - |
| 建ぺい率 | 60% | 容積率 | 200% |
| 駐車場 | カースペース有 4台 | 敷地権利 | 所有権 |
| 地目 | 宅地 | 都市計画 | 市街化調整 |
| 用途地域 | 無指定 |
取引態様 | 売主 |
| 引渡時期 | 相談 | 現況 | 空家 完成済 |
| 建築許可理由 | 建築確認番号 | - | |
| リフォーム | - | ||
| 法令上の制限 | |||
| 備考 | - ※法令上の制限/絶対高さ制限10m、敷地最低面積300m2、景観条例、都市再生特別措置法(居住誘導区域外・都市機能誘導区域外)、文化財保護法 ※カースペースは車種による制限がございます。 |
||
| 更新日 | 2026年2月16日 | 更新予定日 | 2026年2月25日 |
※物件番号:713739551
ポイント
- ◆◇◆◇物件のおすすめポイントはこちら◇◆◇◆
■平成21年築の落ち着いた住まい。
■オール電化でランニングコストを抑えつつ、中心にアイランドキッチンがある伸びやかなLDKが特徴。
■電動シャッターやWIC、大型収納など装備も充実していて、書斎スペースも確保。
■南庭の抜け感が心地よく、屋外とのつながりも楽しめる。
■約90.9坪のゆとりある敷地に、車4台がゆったり駐車可能。
■4LDKの間取りで、落ち着いた暮らしをイメージしやすい一邸。
~ 売主物件につき仲介手数料はいただきません ~
「この物件の詳細が知りたい」「似たような物件を探している」「分からいことだらけで、とにかく相談したい」…など、住宅に関するご相談・お問合せをお待ちしております。
どんな些細な内容でも大丈夫です。経験豊富な弊社スタッフにお任せください!
☆資料請求のお問合せ方法(3分で完了します!)
(1)ページ下部の青色『資料請求』ボタンをクリック
(2)必要事項の入力(ご希望、ご要望欄は空欄でも大丈夫です)
(3)確認画面から【送信】を押すだけ
皆様からのお問合せ、従業員一同心よりお待ちしております。
さらに住協では、会員様限定物件も公開中!
様々な理由で未公開となっている物件情報を、会員様限定でお届けいたします。
会員登録は、ページ上部の赤い『新規会員登録』ボタンから!(最短1分でご登録いただけます)
また会員様には嬉しい特典も!?
(1)非公開となっている物件情報が全て閲覧可能に
(2)お気に入りリストで、物件情報が保存できます
(3)社有物件の優先区画提供(状況により実施できない場合もございます)
(4)登録時に選択された店舗にご来店いただくと、QUOカード1000円分をプレゼント(お一人様一回限り)
※初めてのお問い合わせ、ご来店のお客様のみ有効です。
※ご登録後1ヶ月以内にご来店ください。
※マイページより引換券を印刷の上、店舗までお持ちください。
特徴・設備
閑静な住宅地 前道6m以上 平坦地
2階建
陽当り良好 通風良好
LDK20畳以上 和室
全居室収納 ウォークインクローゼット クローゼット シューズボックス
システムキッチン 対面式キッチン アイランドキッチン
浴室に窓
トイレ2ヶ所
南面バルコニー
南庭
オール電化
駐車3台以上可
小学校 徒歩10分以内 周辺交通量少なめ
即入居可
物件周辺環境
物件情報について
- ※地積、建物床面積、仕様に変更が生じる場合があります。
- ※図面と現況が異なる場合には現況を優先します。
- ※設備やポイントは、販売戸数が複数の物件は、全ての住戸に該当しない項目もあります。
- ※間取りのSは「納戸」「サービスルーム」など建築基準法第28条に適合していない為、居室と認められない空間を表しています。
- ※カースペース、車庫などの駐車スペースについては車種による制限がございます。
- ※車庫面積の記載がある場合は、建物面積に含まれております。
- ※学校への距離は、最短ルートでの表示であり、通学路での距離を表したものではありません。
- ※周辺環境に表示している距離はシステムにより自動算出をしております。システムの不具合等により表示に誤りが生じる場合がございます。
- ※掲載写真、または完成予想図や間取図などの画像に描かれている家具や車などは、特にコメントがない場合、販売価格に含まれません。
- ※完成予想図はいずれも外構、植栽、外観等実際のものとは多少異なることがあります。
- ※市街化調整区域では、基本宅地の造成及び建物の建築はできません。都市計画法第34条第11号区域では条件を満たす場合に住宅等の建築が可能となります。
- ※価格は物件の代金総額を表示しており、建物(プラン例含む)等消費税が課税される場合は税込み価格です。
- ※本ホームページ上の不動産物件情報につきましては、弊社の責任において、管理運用を行っておりますが、更新処理のタイムラグ等により、ご覧戴いた時並びにお問い合わせの時点で、既に成約している場合もございますので、ご容赦下さい。
取扱店舗
-
若葉支店
物件お問い合わせ
- STEP01入力
- STEP02確認
- STEP03完了
この物件を見たひとがチェックしている物件
新着物件
エリアを変更して戸建を検索する
坂戸市内および近郊の駅から戸建を探す
坂戸市の物件を種別から探す
坂戸市の物件を人気の価格帯から探す
-
新築一戸建て
- 1,500万円-2,000万円
- 2,000万円台
- 3,000万円台
- 4,000万円以上
こだわり条件から探す(一戸建て)
埼玉県坂戸市の魅力
坂戸市内を走る鉄道は、東武東上線、東武越生線の2路線があります。利用できる駅は、東武東上線の若葉駅、坂戸駅、北坂戸駅、東武越生線の西大家駅、隣接する鶴ヶ島市より一本松駅を利用できます。東武東上線は、東京メトロ副都心線を通じ、東急東横線と東京メトロ有楽町線も乗り入れるため、都心へのアクセスが良く通勤・通学に便利な路線です。道路交通に関しては、関越自動車道坂戸西スマートインター、圏央道坂戸インター、隣接する関越自動車道鶴ヶ島インターが利用可能。また、幹線道路では国道407号線が主要道路となっており、鉄道・道路交通ともに利便性のある地域となっております。また、坂戸駅からは成田空港、羽田空港行きの高速バスも発着します。一方で坂戸市の魅力はその自然豊かな環境です。坂戸市は「花いっぱいのまち」というコンセプトを推進しており、越辺川、高麗川沿いの桜並木や、北浅羽桜堤公園をはじめ豊かな景観が広がっています。このように都市機能と共存する豊かな自然が魅力の坂戸市は、子育てしやすく、住みやすい地域として知られ、住協グループでも各種不動産(新築・中古戸建・中古マンション・土地)を幅広く取り扱っています。




























