
想いを、そのまま描く。
自由設計という名の、
たった一つのプランニング。

想いを、そのまま描く。
自由設計という名の、
たった一つのプランニング。
- plan no.5
- plan no.12
- plan no.14
plan no.53ldk
参考
プラン
- 建物面積/約27.625坪
- 建物価格/2,295万円
-
- 1
- アイランドキッチン
- 家族が自然と集まるアイランドキッチンは、料理の時間が家族の時間になります。そしてリビング・ダイニングと一体感のあるおしゃれな空間を演出。
-
- 2
- パントリー&リビング収納
- 美しさを保つための、計算された収納設計。必要な場所に必要な収納があることで動線が美しく整い、慌ただしさを感じさせない、ゆとりある暮らしを叶えます。
-
- 3
- 脱衣室&ランドリー
- 洗面空間と分けることで、思春期のお子様や来客などにも配慮した子育て世帯にも人気のトレンドプラン。
リネン収納も備え、片付けもスムーズに。
- plan no.5
- plan no.12
- plan no.14
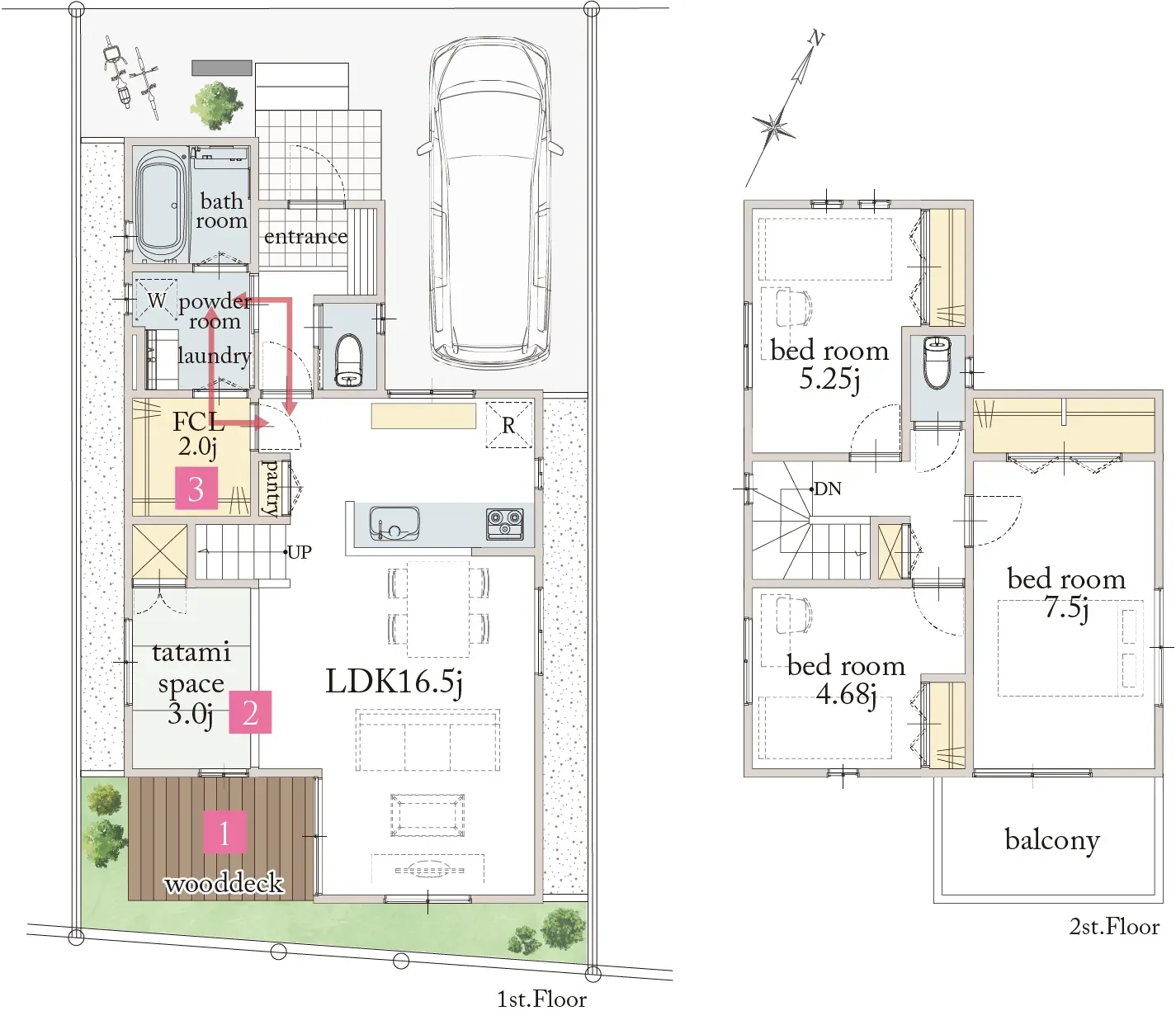
plan no.12
3ldk
参考
プラン
- 建物面積/約27.625坪
- 建物価格/2,240万円

-
- 1
- ウッドデッキ
- 室内と屋外が静かにつながる贅沢。リビングから続くウッドデッキは、視線と動線を外へと広げ、空間に奥行きと開放感をもたらします。
-
- 2
- 畳スペース&収納
- 畳ならではの、やわらかな質感が、空間全体に落ち着きと品の良さを添えます。和を取り入れながらも、現代の暮らしに調和する設えです。
-
- 3
- ファミリークローゼット
- リビングからもパウダールームからもアクセスできる回遊動線により、外出時の身支度や帰宅後の片付け、洗濯動線までが自然に完結。
- plan no.5
- plan no.12
- plan no.14
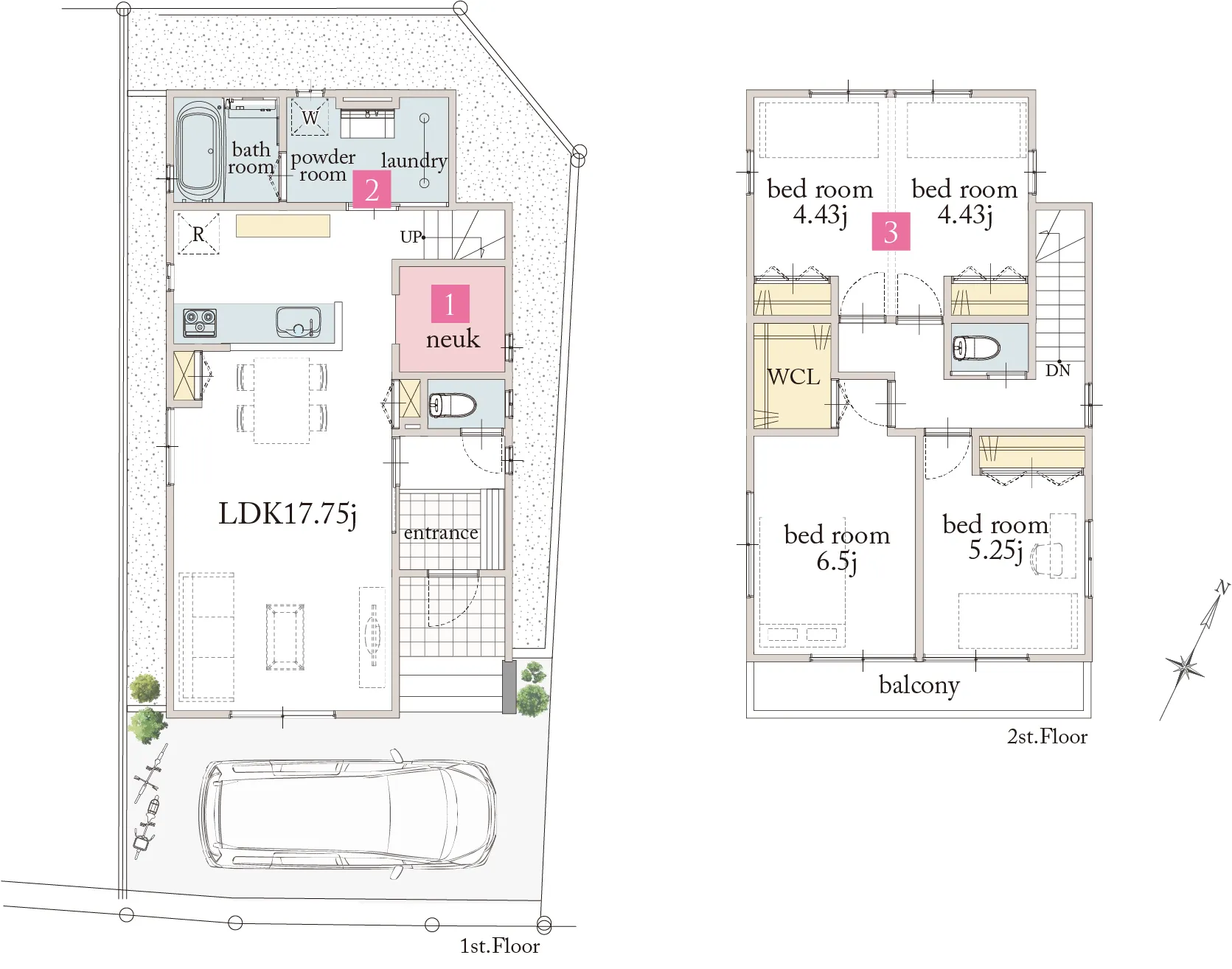
plan no.14
3(4)ldk
参考
プラン
- 建物面積/約27.5坪
- 建物価格/2,335万円

-
- 1
- おこもり空間ヌック
- 読書やカフェタイム、子どもの遊び場など、一人でも家族でも気軽に使える特別な場所。空間にメリハリが生まれ、住まい全体がより豊かに感じられるのも魅力。
-
- 2
- パウダールーム&ランドリー
- 天井にホスクリーンを設置した、ゆとりある広さの洗面室は、洗う・干す・整えるが一室で完結し効率的。乾燥機を設置しても圧迫感を感じさせない空間設計。
-
- 3
- フレキシブルルーム
- 広々とした2ドア1ルーム。それぞれの空間にクローゼットを完備し、お子様の成長に合わせて2部屋に仕切って使える可変型の間取りです。